„InterEng, das Engineering Leistungsangebot reicht von 3D-Maßaufnahmen vor Ort, Neuplanungen bis zur Detailkonstruktion von eigenen Produkten und Anlagenteilen. Bei Intercem sind wir besonders stolz auf die Einsatzbereitschaft und Kompetenz unserer Ingenieure.“
Agieren statt reagieren | Die Nähe zum Kunden, eine direkte Kommunikation und ein kontinuierlicher Informationsfluss sind uns besonders wichtig. Voraussetzung dafür ist, dass intern wie extern ein Zusammenhalt gepflegt wird, der langjährige Mitarbeiterbindungen ebenso schafft wie loyale Kundenbeziehungen. Wir empfehlen uns mit unserer Arbeit und mit unseren Serviceangeboten für Folgeaufträge. In der Regel haben wir bereits zwei oder mehr Aufträge für einzelne Kunden abgewickelt.
Einen wesentlichen Beitrag zu diesem Erfolg leisten unsere Serviceangebote. Ob vor, während oder bei Übergabe eines Projekts, unser Prüfengineering und die Experten-Zertifizierung stellen stets die gleichbleibend gute Qualität sicher, für die Intercem bekannt ist. Und unser Instandhaltungsservice sorgt auch nach Beendigung eines Projekts stets für einen schnellen und reibungslosen Betrieb der von uns erstellten Anlagen, egal wo sie sich befinden.
Unsere wichtigsten Serviceleistungen im Überblick:
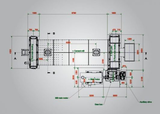
- Mechanisches Engineering
- Prozess Engineering
- Elektrisches Engineering
- Bautechnisches- und Fundament Engineering
- Service vor Ort
- Projektbesprechung
- Blind-Audit
- Maßaufnahme
- Wirtschaftlichkeitsberechnungen
- Demontage-/Montage-Überwachung
- Inbetriebnahme/-überwachung
- Instandhaltungsservice
Mittels Videokonferenz sind wir zum Beispiel in der Lage, von Deutschland und der Schweiz aus Projekte in aller Welt zeitnah zu verfolgen und bei Bedarf schnell einzugreifen. Ein weiterer Vorteil ist, dass wir mit dem Kunden Face-to-Face kommunizieren und gemeinsam lösungsorientiert arbeiten können.
Projektdefinitionen, Wirtschaftlichkeitsberechnungen und die exakte Maßaufnahme mit hochmodernen 3D-Messinstrumenten gehören zu unseren wichtigsten Serviceleistungen.




