« InterEng, la gamme de services de l’ingénierie, va de la mensuration 3D sur le site au nouveau planning jusqu’à la construction de détail de propres produits et composants pour le site. Nous chez Intercem sont particulièrement fiers du niveau élevé de compétence et d’engagement de nos ingénieurs. »
Agir au lieu de réagir | La proximité au client, la communication directe et un flux d’informations continu sont d’importance particulière pour nous. Une pré-condition en est une cohésion interne-externe, qui mène à une fidélité longue du personnel ainsi qu’à des connexions loyales avec les clients. Nous nous recommandons avec notre travail et nos efforts de service pour des commandes suivantes. En général, nous avons déjà traité deux ou plus de commandes pour les clients individuels.
Nos offres de service contribuent considérablement à ce succès. Avant, pendant ou après le transfert d’un projet : notre ingénierie de contrôle et la certification par des experts assurent toujours une qualité constamment bonne. Intercem est bien connu pour cette raison. Et après avoir terminé un projet, notre service de maintenance assure une opération rapide et douce des sites que nous avons construits, n’importe où ceux-ci sont situés.
Nos services les plus importants dans un coup d’œil :
- Ingénierie mécanique
- Ingénierie de process
- Ingénierie électrique
- Ingénierie civile
- Service sur site
- Réunions de projet
- Blind-audits
- Mensuration
- Calculs de profitabilité
- Démontage-/montage supervision
- Mise en service/-supervision
- Service de maintenance
Par vidéoconférence, par exemple, nous sommes capables de suivre les projets dans le monde entier de l’Allemagne et de la Suisse, ce qui nous donne la possibilité d’intervenir promptement où nécessaire. Un autre avantage en est la communication « face to face » avec le client et la possibilité d’une collaboration orientée à trouver des solutions.
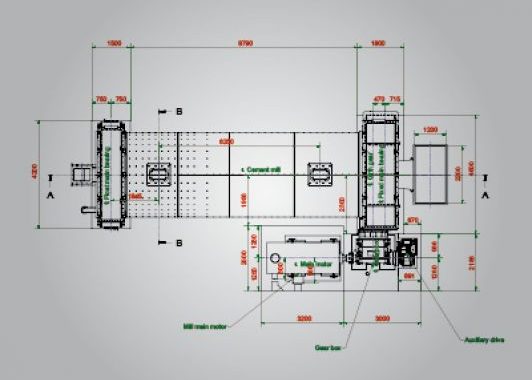
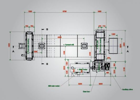
Les définitions de projet, les calculs de profitabilité et le mesurage exact avec des instruments de mesure 3D ultra-modernes font partie de nos services les plus importants.




